Notre mission consistait à aider le client à se projeter sur un bien qu’il souhaitait acquérir. Nous avons donc effectué un rendez-vous sur place, échangées avec le client et lui avons envoyé par la suite des plans d’esquisse de la maison.
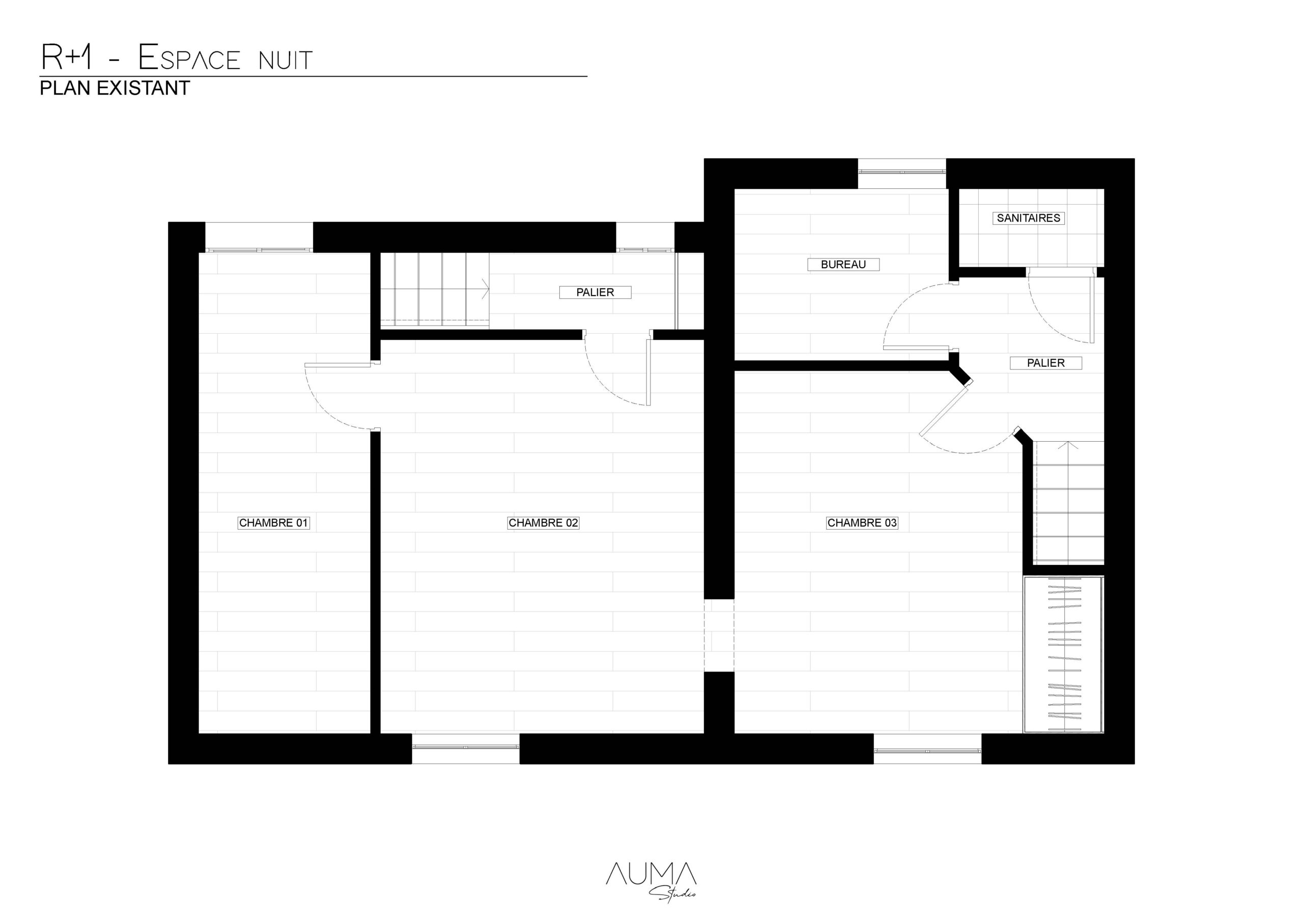
Il s’agit de deux maisons mitoyennes communicantes, sur deux niveaux. Au rez-de-chaussée nous avons pris le parti de tout décloisonner et de supprimer un des deux escaliers. A l’étage, nous avons revu la distribution des chambres et créé une salle de bain.





