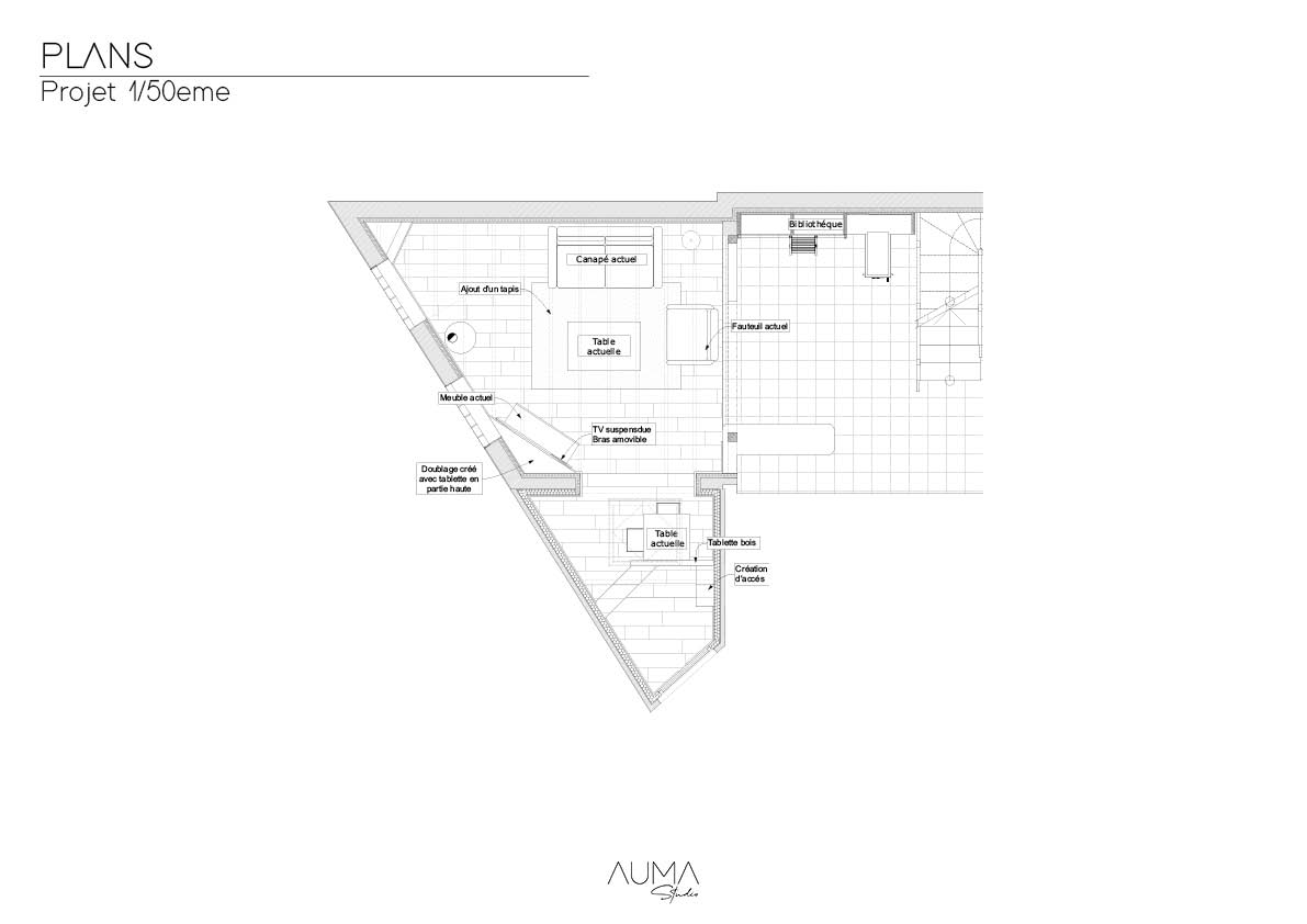
Notre mission pour ce projet a consisté à optimiser les volumes et à renforcer la cohérence entre les espaces. Pour cela, nous avons :
– Créé une dalle dans l’ancienne véranda, permettant d’unifier les niveaux, d’assurer une continuité visuelle et d’accentuer la sensation d’agrandissement.
– Supprimé la baie coulissante, ce qui a permis un apport généreux de lumière naturelle et renforcé l’impression d’espace.
– Intégré un support TV de manière discrète et fonctionnelle, et ajouté une baie fixe avec chatière, alliant praticité et esthétisme.
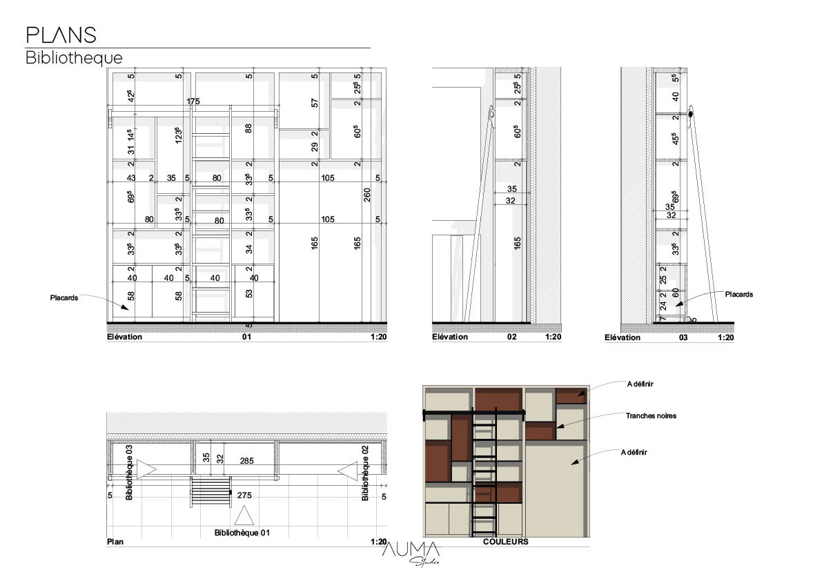
– Conçu une bibliothèque sur mesure, exploitant la hauteur sous plafond pour structurer l’espace, offrir de nombreuses solutions de rangement et mettre en valeur les objets décoratifs des clients.







